
一、说明
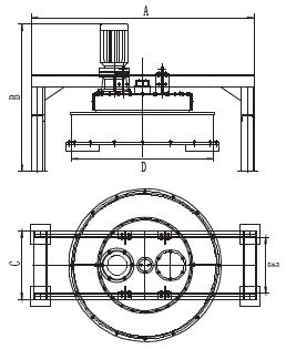
RBCPS隔爆型永磁自卸盘式除铁器属我公司最新研发的新型高效除铁器,已申请国家发明专利、实用新型专利、外观设计专利。本设备内部磁性材料全部采用高强稀土“钕铁硼磁王”组成强力磁芯,磁铁结构为扇形放射状布置,工作面圆盘采用减速电机驱动齿轮强制转动,圆盘底部工作面带有固定的不锈钢刮板,圆盘转动强制自动卸铁,齿轮结构相对于橡胶皮带卸铁的方式而言,转动时的扭矩力可超出12倍之多。
四、主要技术参数

联系人:李经理
手机:18863665265
电话:18863665265
邮箱:sdhengji@163.com
地址: 山东省潍坊市潍城区拥军路2798号